
















🏡 Case noi premium în Săcele – Str. Păducelului
Două locuințe individuale alipite lateral, cu pereți complet separați:
Descoperă un proiect rezidențial modern, format din două case alipite, fiecare locuință oferind intimitate totală și o compartimentare ideală pentru familii moderne.
Fiecare casă are o suprafață utilă de 117,94 mp și este amplasată pe un teren generos de 338,5 mp.
Locuințele sunt proiectate pe parter + etaj, cu o arhitectură minimalistă, volum simplu, finisaje calde și accente din lemn natural.
📐 Compartimentare ideală
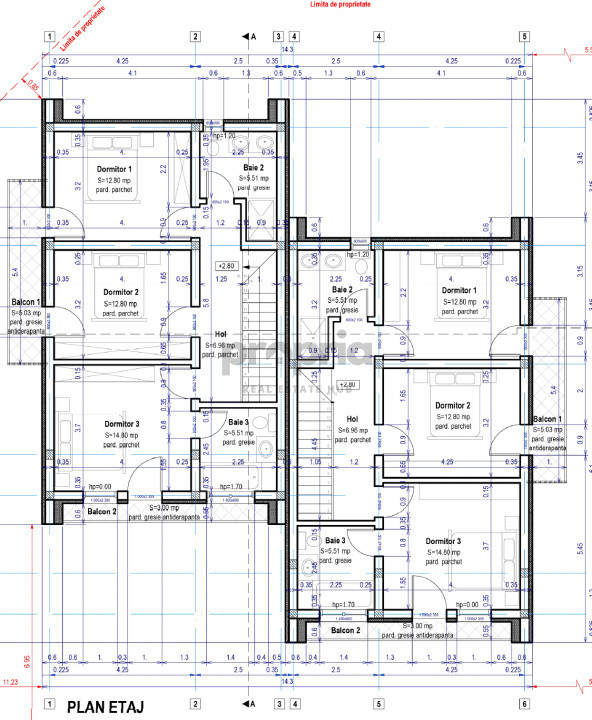
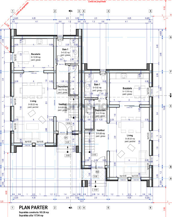
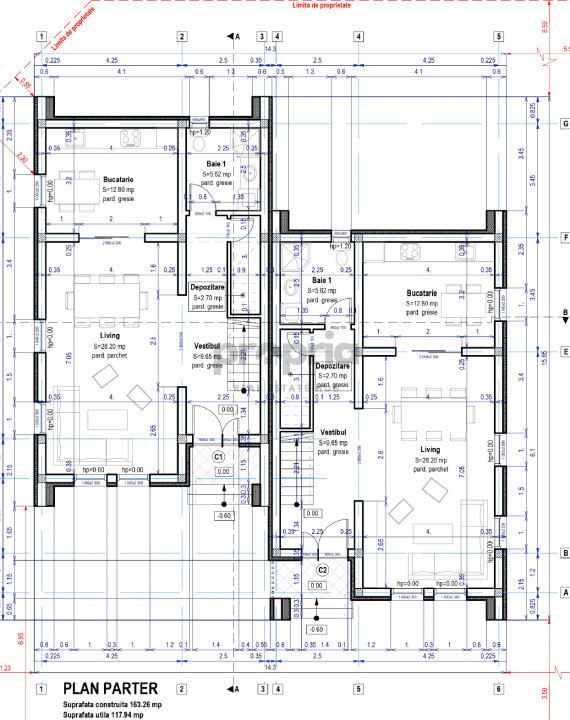
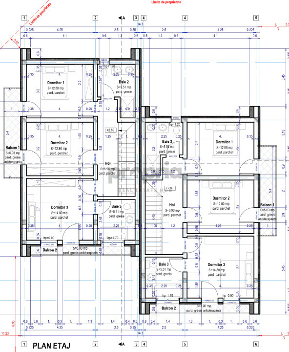
Parter:
• Living spațios – 28,20 mp
• Bucătărie – 12,80 mp
• Baie – 5,62 mp
• Depozitare – 2,70 mp
• Vestibul – 9,66 mp
Etaj:
• 3 dormitoare generoase (12,80 mp, 12,80 mp și 14,80 mp)
• 3 băi complet echipate
• 2 balcoane
• Hol de acces
🧱 Specificații tehnice
• Zidărie din cărămidă T30 termobloc Leier
• Izolație exterioară din vată bazaltică de 10 cm
• Izolație tavan din vată bazaltică de 15 cm
• Tâmplărie PVC Salamander cu 3 foi de sticlă
• Încălzire în pardoseală cu centrală Ariston Genus One
• Uși interioare MDF alb mat, import Germania
• Acoperiș cu tablă fălțuită gri antracit
• Gard exterior din șipcă metalică gri antracit
• Alee pietonală și loc de parcare pavate
🎨 Finisaje personalizabile
• Buget gresie: până la 70 lei/mp
• Buget parchet: până la 60 lei/mp
• Finisaje interioare la alegerea cumpărătorului
📍 Locație excelentă – Str. Păducelului, Săcele
• La doar 190 m de LIDL
• 10 km până în centrul Brașovului
• Acces rapid la centura Brașovului
• Zonă liniștită, aer curat, aproape de natură și munte
Ideală pentru o familie care caută o locuință modernă, spațioasă și bine amplasată, într-o zonă excelentă.
💰 Preț și modalități de plată
• Preț vânzare la cheie: 229.999 € ( pe imobil)
• Se acceptă plată în tranșe astfel:
o 25% la antecontract
o 10% la roșu
o 15% la gri
o 50% la finalizare
• Se acceptă plata prin credit ipotecar, cu avans minim de 30%, prețul fiind 239.999 €
• Se poate opta și pentru predare la stadiul de gri, la preț redus, mai exact 169.999 €
📅 Termen de finalizare: maxim 18 luni de la semnarea antecontractului.
📸 Randările prezentate
Imaginile 3D sunt cu titlu de prezentare și reflectă stilul final al construcției: volum modern, finisaje calde, combinație elegantă de alb, nuanțe de lemn și gri antracit.
Interiorul poate fi amenajat minimalist, conform preferințelor cumpărătorului.
📞 Contact
Pentru detalii și vizionări:
Alin Cruceriu – PROPRIA | REAL ESTATE HUB
📱 0750 407 907